EL ESPACIO IDEAL PARA CUALQUIER EVENTO
Contamos con una variedad de espacios
ALQUILER DE ESPACIOS
La Alianza Francesa de Cusco ofrece en alquiler una variedad de espacios ideales para eventos culturales, educativos o corporativos. Ubicada en el corazón de la ciudad, la institución combina modernidad y un ambiente cultural único para satisfacer diversas necesidades.
Los espacios disponibles son los siguientes:
Descripción
Un entorno tranquilo y cultural para reuniones pequeñas o actividades literarias y educativas.
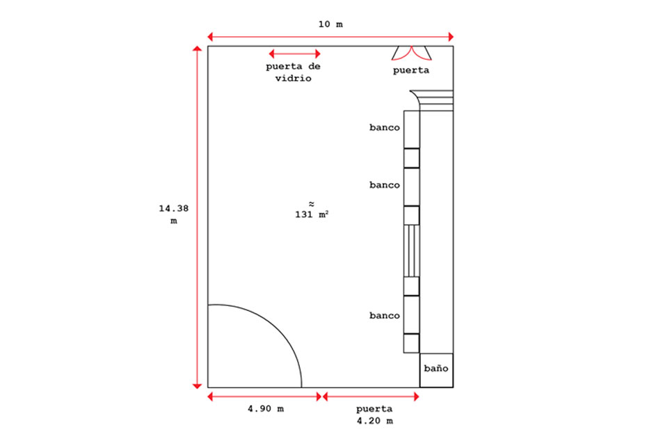
Descripción de las medidas
- Mediateca m2 : 137.
- Cocina de la Mediateca: 21 m2
- Total : 158 m2
Material a disposición
- (85) sillas
- (03) mesas hexagonales
- (03) mesas rectangulares
- (03) monitores/ordenadores (¿tablet?)
- (01) ordenador portátil
- (02) sofá
- (02) sillón
- (01) poufs
Descripción
Un espacio al aire libre ideal para recepciones, actividades culturales o eventos sociales.
Capacidad
- 70 personas
Descripción
Diseñada para reuniones, talleres y seminarios, equipada con tecnología audiovisual.
Descripción de las medidas
- Altura piso – techo : 2.50 m
- Área total de la sala : 43 m2
- Capacidad : 60 – 70 personas
Material a disposición
- Iluminación direccionada
- Una pantalla de TV (previa consulta anticipada)
- Pared presta para clavar, y pegar soportes.
- Parlantes, micrófono y consola digital de 12 canales Soundcraft (previa consulta anticipada)
Descripción:
Un espacio dedicado a las artes, a la creación y al encuentro. Ideal para cine, teatro, música, danza, convenciones.
Dimensiones y Capacidad:
Escena 5.50 m. x 3.50 m.
65 butacas + posibilidad de añadir sillas delante
Material a disposición:
- (1) Proyector (OTOMA ZU607T) con tamaño de proyección de 5.30 m. x 4.55 m.
- (02) Altavoces de torre (POLK ES60)
- (1) Subwoofer (POLK ES12)
- (1) Amplificador (DENON AVR-S670H)
- (1) Micrófono y consola
Descripción
Perfecta para muestras de arte y exposiciones temáticas.
Capacidad
- 40 – 50 personas
Material a disposición
- Ecran de 140 x 170 cm
- (02) parlantes JBL
- (01) consola digital de 12 canales Soundcraft
Material a requerimiento
- Sillas
- (01) Proyector
- (02)Extensiones
- (01)Microfono inalambrico
INFORMES
Oficina Central: Av. de la Cultura 804, Cusco
Teléfono Central:
(51) 984 110 762
af.cusco@alianzafrancesa.org.pe
Horario de atención: Lunes a viernes: 9:00 a 13:00 / 16:00 a 19:00
